Aventis Pasteur - Planta Pilar
Parque Industrial Pilar, Prov. de Buenos Aires.
Proyecto de Arq.: Estudio Biglieri – Llorens Arquitectos
Sistema de aire acondicionado y ventilaciones mecánicas, con sectores limpios y presiones escalonadas. Control de temperatura, presión y humedad. Extracciones de polvo en áreas de producción. Sistema con suministro central de agua fría y caliente y unidades de tratamiento de aire. Sistema de generación y distribución de vapor industrial. Proyecto y Dirección de Obra.
Capacidad de Refrigeración:
750 TRGeneración
de Vapor:
6.000 Kg/h
Superficie:
3.300 m²
Bayer Argentina S.A.
Nueva Planta Industrial en Parque Industrial Pilar, Prov. de Buenos Aires.
Proyecto de Arq.: Estudio Biglieri – Llorens Arquitectos
Sistema de aire acondicionado y ventilaciones mecánicas, con sectores limpios y presiones escalonadas. Controles de temperatura, presión y humedad. Extracciones de polvo para áreas de producción y laboratorios. Sistema con suministro central de agua fría y caliente y unidades de tratamiento de aire. Proyecto y Dirección de Obra.
Capacidad de Refrigeración:
500 TRCapacidad
de Calefacción:
1.000.000 Kcal/h
Superficie:
Bolsapel S.A.

Proyecto de Arq.: CAMCI
Aire acondicionado para la planta y oficinas con equipos roof-top. Agua de enfriamiento para las maquinas impresoras.
Capacidad de Refrigeración:
135 TRCapacidad
de Calefacción:
225.300 kcal/h
Superficie:
2.400 m²
Honda Argentina
Campana. Prov. de Buenos Aires.
Proyecto de Arq.: Estudio Mackintosh.
Instalaciones de calefacción y ventilaciones mecánicas para las líneas de montaje, montaje de motores y los sectores de soldadura, estampado e inspección final.
Capacidad de Refrigeración:
96 TRCapacidad
de Calefacción:
2.275.000 Kcal/h
Superficie:
12.500 m²
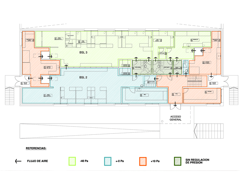
Instituto Malbran

Proyecto de Arq.: Bischof / Egozcue / Vidal. Arquitectos.
Sistema de aire acondicionado y ventilaciones mecánicas para Laboratorio de Seguridad Biológica BSL 2 y BSL 3,. Con unidades de tratamiento de Aire, Filtrado H13 en extracciones y generación de Agua Enfriada.
Capacidad de Refrigeración:
100 TRCapacidad
de Calefacción:
143.600 kcal/h
Superficie:
350 m²
Schering Plough S.A.
Remodelación de P. Industrial. Lomas de Mirador, Prov. de Buenos Aires.
Proyecto de Arq.: Estudio Biglieri – Llorens Arquitectos
Replanteo de las instalaciones de aire acondicionado existentes y confección del anteproyecto de los nuevos sistemas.
Capacidad de Refrigeración:
62 TRCapacidad
de Calefacción:
87.700 kcal/h
Superficie:
340 m²
SENASA - Martinez

Proyecto de Arq.: Moreno Arquitectos
Sistema de aire acondicionado y ventilaciones mecánicas para Laboratorio de Control y Diagnósticos Biológicos BSL 2.. Con unidades de tratamiento de Aire, Filtrado H13 en extracciones con Sistema Bag-In / Bag-Out y generación de Agua Enfriada.
Capacidad de Refrigeración:
540 TRCapacidad
de Calefacción:
1.200.000 Kcal/h
Superficie:
7.740 m²
Unilever Argentina
Parque Industrial Pilar, Prov. de Buenos Aires.
Proyecto de Arq.: Arquitecto S. Bonfanti y Asociados.
Instalaciones de climatización y ventilación mecánica de la Planta de Caldos y Sopas Knorr.
Capacidad de Refrigeración:
85 TRCapacidad
de Calefacción:
68.800 kcal/h
Superficie:
10.200 m²