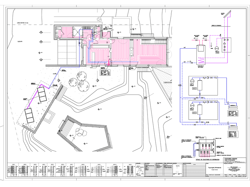
Casa Winelands
Tupungato, Provincia de Mendoza.
Proyecto de Arq.: Mc Cormack y Asociados.
Sistema de agua caliente y radiadores con caldera mural y aire acondicionado con equipos VRV frío-calor. La casa se completa con paneles colectores de energía solar, con bombas, cañerías y tanques de acumulación para precalentamiento del agua caliente sanitaria.
Capacidad de Refrigeración:
10 TRCapacidad
de Calefacción:
45.000 kcal/h.
Superficie:
270 m²
Libertador y Olazábal
Ciudad de Buenos Aires.
Proyecto de Arq.: Aisenson Arquitectos.
Para el Climatización de las distintas Unidades del frente y contrafrente se ha previsto la instalación de varios Sistemas de Volumen de Refrigerante Variable VRV de refrigeración por compresión mecánica y de calefacción por bomba de calor y Equipos Splits.
Capacidad de Refrigeración:
83 TR / 73 TRCapacidad
de Calefacción:
Superficie:
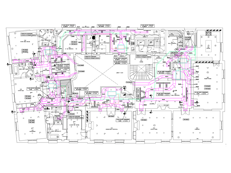
Edificio Los Molinos - Faena Properties
Ciudad de Buenos Aires
Proyecto de Arq.: Faena Properties. McCormack y Asociados. Arquitectos.
Sistema de climatización por medio de Volumen de Refrigerante Variable VRV y ventilaciones mecánicas para viviendas. Sistema de Climatización y generación de Agua Enfriada para Centro de Exposiciones, Oficinas y Locales Comerciales.
Capacidad de Refrigeración:
600 TR / 220 TRCapacidad
de Calefacción:
Superficie:
Edificio Posadas
Ciudad de Buenos Aires
Proyecto de Arq.: Estudio Bustillo
Remodelación departamentos con instalación de frío y calor mediante sistema VRV.
Capacidad de Refrigeración:
20 TRCapacidad
de Calefacción:
180.000 Kcal/h
Superficie:
Torre Cerviño
Ciudad de Buenos Aires
Proyecto de Arq.: KAS S.A.
Sistema de calefacción por piso radiante, refrigeración por medio de equipos multisplit. Acondicionamiento de espacios comunes y ventilaciones mecánicas de cocheras.
Capacidad de Refrigeración:
400 TRCapacidad
de Calefacción:
550.000 kcal/h
Superficie:
3.800 m²