Edificio Techint
Av. Córdoba 320, Ciudad de Buenos Aires.
Proyecto de Arq.: Ellis y Asociados. Arquitectos.
Sistema de climatización por medio de Volúmen de Refrigerante Variable VRV y ventilaciones mecánicas.
Capacidad de Refrigeración:
160 TRCapacidad
de Calefacción:
Superficie:
Cía. Gillette de Argentina S.A.
Edificio de oficinas Ugarte y Panamericana, Munro, Prov. de Buenos Aires.
Proyecto de Arq.: Aslan y Ezcurra y Asociados Arquitectos.
Sistema frío y calor todo aire con sistema de Volumen de Aire Variable (VAV). Proyecto y Dirección de Obra.
Capacidad de Refrigeración:
175 TRCapacidad
de Calefacción:
61.700 kcal/h
Superficie:
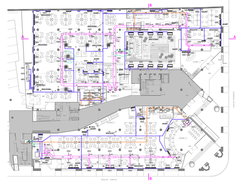
Mediterranean
Piedras y Chile. Capital Federal.
Proyecto de Arq.: Rubinat Arquitectura
Sistemas de acondicionamiento tipo VRV, frío-calor con calefacción por bomba de calor. La distribución de aire desde las unidades evaporadoras sobre cielorraso realizadas por medio de una red de conductos de alimentación y retorno con difusores terminales. Sistema de Inyección de aire exterior y extracciones mecánicas de locales sanitarios y salas de máquinas. Proyecto y Dirección de Obra.
Capacidad de Refrigeración:
97 TRCapacidad
de Calefacción:
117.800 kcal/h
Superficie:
2.200 m²
Edificio Novartis (ex CIBA - Geigy de Argentina)
Capital Federal
Proyecto de Arq.: Aslan y Ezcurra y Asociados Arquitectos.
Sistema frío y calor todo aire con sistema de Volumen de Aire Variable (VAV), con generación de agua fría y caliente. Proyecto y Dirección de Obra.
Capacidad de Refrigeración:
390 TRCapacidad
de Calefacción:
Superficie:
Osde Mendoza
Provincia de Mendoza.
Proyecto de Arq.: ESARQ - Swiecicki Arquitectos.
Sistema de aire acondicionado central con equipos autocontenidos del tipo Roof-Top frío-calor. Extracciones mecánicas de cocheras, locales sanitarios y salas de máquinas. Proyecto.
Capacidad de Refrigeración:
195 TRCapacidad
de Calefacción:
301.900 kcal/h
Superficie:
4.200 m²
Edificio Oficinas Pluspetrol - Sede Neuquén
Provincia de Neuquén.
Proyecto de Arq.: Poli + Boxaca Arquitectas
Sistema de Aire Acondicionado para Oficinas con equipos tipo Roof-Top.
Capacidad de Refrigeración:
67 TRCapacidad
de Calefacción:
146.200 kcal/h
Superficie:
1.100 m²
Sancor Seguros
Sunchales, Provincia de Santa Fé
Proyecto de Arq.: Jeffrey Berk Arquitecto.
Para el edificio del frente se utiliza un sistema de aire acondicionado frío-calor con generación de agua fría y agua caliente con unidades manejadoras de aire distribuidas en Salas de Máquinas atendiendo a las distintas zonas de la planta. Para las Edificios tipo “Pastillas” se utilizan Unidades Manejadoras de Aire con cajas VAV para regular la temperatura en las distintas zonas.
Capacidad de Refrigeración:
600 TRCapacidad
de Calefacción:
460.000 kcal/h
Superficie:
22.800 m²